︎
Projects
Stories
Information
Follow us
︎
︎
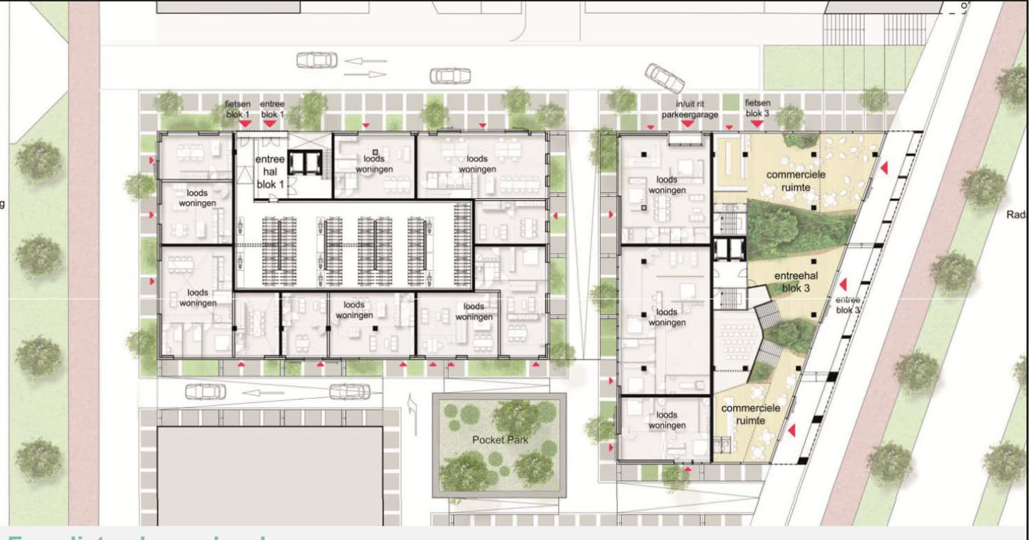
Urban Blocks Sloterdijk
︎
/︎
/︎
#Test
#Urban_Development
#Signing
Laden…
︎
Email
+31 20 215 7360
Running on Cargo